中央線、丸ノ内線、東西線、大江戸線エリアのお部屋探しをお手伝い!|賃貸不動産の専門店リブ・ホーム!!
■ご希望の駅をお選びください。(複数選択が可能です。)
■ご希望の条件をお選びください。(複数選択が可能です。)
物件を並べ替え
昇順
降順
マンション
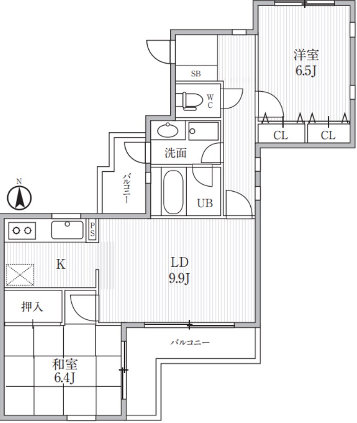
1K
20.25㎡
7.6万円
( 6000円)
交通: 西武新宿線 鷺ノ宮駅 徒歩8分
敷金/礼金: 1ヶ月/ 1ヶ月
保証金/敷引/償却金: -/ -/ -
所在地: 中野区鷺宮
築年月: 2007年11月
ポイント
静かな住宅街に佇む、安心感と快適性を備えた住まい☆
詳細ページ
2LDK
61.61㎡
18.5万円
( 10000円)
交通: 西武新宿線 都立家政駅 徒歩5分
築年月: 1994年3月
NET無料♪角部屋☆
アパート
2DK
45.36㎡
10.6万円
( 2000円)
交通: 西武新宿線 鷺ノ宮駅 徒歩7分
所在地: 中野区白鷺
築年月: 1991年1月
☆ペット可♪「鷺ノ宮」駅まで徒歩7分の好立地☆
62.16㎡
18.0万円
( 13000円)
交通: 西武新宿線 鷺ノ宮駅 徒歩12分
敷金/礼金: -/ 1ヶ月
所在地: 中野区上鷺宮
築年月: 新築2026年3月
☆インターネット無料♪設備充実の新築アパート☆
1LDK
40.4㎡
12.3万円
( 12000円)
交通: 西武新宿線 鷺ノ宮駅 徒歩6分
築年月: 2006年6月
☆敷金なし!南向きで陽当たり良好♪駅から徒歩6分☆
1R
40.19㎡
10.3万円
( 20000円)
広々14帖の洋室♪ペット飼育可能♪
47.41㎡
17.0万円
( 8000円)
交通: 中央・総武線各停 高円寺駅 徒歩14分
所在地: 杉並区阿佐谷北
築年月: 1988年6月
ペットと暮らせる!公園近く♪3階最上階角☆2LDK☆
40.48㎡
15.0万円
築年月: 2010年12月
☆設備充実の人気分譲賃貸マンション☆
7.7万円
( 5000円)
築年月: 1991年3月
女性限定マンション♪安心のオートロック・モニター付きインターフォンあり♪
26.7㎡
9.4万円
( 7000円)
交通: 西武新宿線 都立家政駅 徒歩10分
敷金/礼金: -/ 1.5ヶ月
所在地: 中野区若宮
築年月: 新築2026年6月
☆新築☆設備充実の人気シリーズ♪
24.42㎡
9.1万円
24.22㎡
8.9万円
問い合わせ
(234坪)