中央線、丸ノ内線、東西線、大江戸線エリアのお部屋探しをお手伝い!|賃貸不動産の専門店リブ・ホーム!!
■ご希望の駅をお選びください。(複数選択が可能です。)
■ご希望の条件をお選びください。(複数選択が可能です。)
物件を並べ替え
昇順
降順
マンション
1R
17.5㎡
7.6万円
( 5000円)
交通: 京王井の頭線 西永福駅 徒歩2分
敷金/礼金: -/ -
保証金/敷引/償却金: -/ -/ -
所在地: 杉並区永福
築年月: 1995年4月
ポイント
☆バイク置き場有り!TVインターフォン☆広め1K☆
詳細ページ
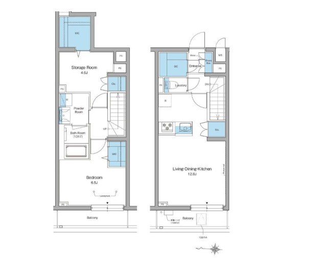
2SLDK
73.37㎡
27.9万円
( 30000円)
交通: 京王井の頭線 西永福駅 徒歩5分
敷金/礼金: 1ヶ月/ -
築年月: 新築2025年7月
井の頭線「西永福」駅徒歩3分☆2SLDK☆ペット可☆ネット無料☆フリーレント1ヶ月☆
1SLDK
70.84㎡
25.8万円
井の頭線「西永福」駅徒歩3分☆ペット可☆ネット無料☆フリーレント1ヶ月☆
67.23㎡
24.5万円
24.4万円
井の頭線「西永福」駅徒歩3分☆ペット可☆ネット無料☆フリーレント2ヶ月☆
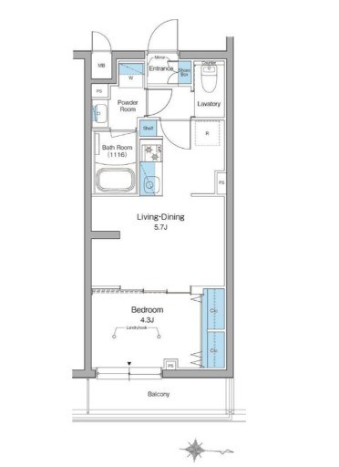
1LDK
31.81㎡
17.2万円
( 20000円)
16.5万円
16.9万円
16.7万円
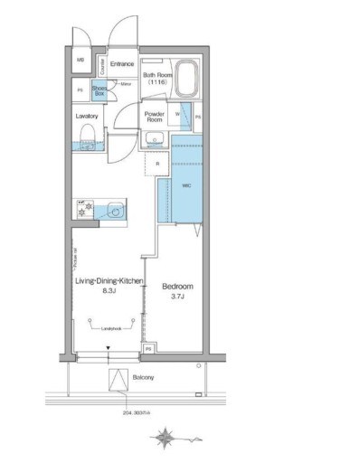
1DK
37.84㎡
13.5万円
交通: 京王井の頭線 西永福駅 徒歩4分
築年月: 2011年11月
井の頭線「西永福」駅徒歩3分☆1DK☆ネット無料☆築浅☆独立洗面台
アパート
1K
20.52㎡
9.2万円
( 4000円)
交通: 京王井の頭線 永福町駅 徒歩7分
敷金/礼金: -/ 2ヶ月
築年月: 2013年3月
☆使いやすい洋室6帖1K☆設備充実☆
問い合わせ
(234坪)