杉並区成田東[アパート]

杉並区成田東[アパート]

アパート[杉並区成田東]

高円寺・東中野・荻窪|中央線のお部屋探し検索サイト

  • 代表:03-5307-6655
  • 10:00~19:00 / 定休日:毎週水曜日(1月~3月は無休)

物件詳細

杉並区成田東[アパート]

 

杉並区成田東[アパート] の物件詳細ページです。

物件種別: アパート

お問い合わせ番号:LO076114

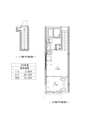
間取り(面積)

1DK

( 23.39㎡ )

賃料(管理費等)

9.4万円

( 15000円 )

交通: 東京メトロ丸ノ内線 南阿佐ヶ谷駅 徒歩11分

敷金/礼金: - / 1ヶ月

保証金/敷引/償却金: - / - / -

所在地: 杉並区成田東

築年月: 完成予定
2026年3月

ポイント

☆敷金O☆新築☆南阿佐ヶ谷駅徒歩10分の好立地!

問い合わせ(無料)

TEL: 03-5349-8686

お問い合わせ番号: LO076114

QRコード

  • リビング
  • キッチン
  • バス
  • 玄関
  • ベッドルーム

資料請求などはこちら

問い合わせ(無料)

TEL: 03-5349-8686

お問い合わせ番号: LO076114

鶴岡 恵太

弊社では総合仲介システムを導入しており、インターネット上に載っている物件は、自社・他社・エリア等問わず、ほとんどご紹介可能となっております。お客様のご希望にあったお部屋をご紹介させて頂きます。

セールスポイント

特徴 閑静な住宅街,最上階,2F以上,ダブルロック,ディンプルキー,玄関ホール,陽当たり良好,カード決済可(入居時費用)
設備 内階段,システムキッチン,ガスコンロ設置済,2口コンロ,IHクッキングヒーター,バス・トイレ別,浴室乾燥,脱衣所,温水洗浄便座,洗面所独立,シャワー付洗面台,エアコン,BS,CATV,ネット専用回線,光ファイバー,ネット使用料不要,インターホン,TVインターホン,給湯,フローリング,シャッター,室内洗濯機置場,クローゼット,シューズボックス,収納有,ガス(都市ガス),下水(公共下水),水道(専用メーター),電気
光ファイバー エレベーター
天井高 空調 1基
駐車場 駐車場:無
周辺施設 コンビニ:ファミリーマート 杉並成田東三丁目店 142m
スーパー:サミット 135m
公園:梅里中央公園★ 140m
スーパー:コープみらい 成田東店 205m
図書館:杉並区立成田図書館 357m
ドラッグストア:ウエルシア杉並松ノ木店 439m
コンビニ:セブンイレブン 杉並成田東4丁目店 465m

物件概要

物件所在地 東京都杉並区成田東3丁目
交通機関 東京メトロ丸ノ内線 南阿佐ヶ谷駅 徒歩11分
中央・総武線各停 阿佐ヶ谷駅 徒歩19分
京王井の頭線 西永福駅 徒歩29分
専有面積 23.39㎡
所在階/地上階数 2 / 2 部屋向き
建物構造 鉄骨 築年月 完成予定
2026年3月
総戸数 10
賃料 9.4万円 管理費等 15000円
敷金 - 礼金 1ヶ月
保証金 - 更新料 新賃料 1ヶ月
積増し敷金 - 積増し理由
その他一時金 24hメンテナンス:16,500円 退去時CL費用:49,500円 その他費用 ◆諸条件相談可◆お問合わせはリブホーム荻窪店まで→03-5349-8686まで♪
損害保険 有 料金:20000円 損保期間:24ヶ月 
契約形態 普通借家契約 期間 契約期間:2年
保証会社 必須 初回総賃料の60%、毎年13000円、毎月口座振替330円 ほか 保証人代行 必須
現況 入居時期 即時 
入居条件 ペット(不可),事務所(不可),単身(可)
IT重説

その他

取引態様 仲介元付(一般) 自社管理番号 LO076114
情報更新日 2026年3月20日 次回更新予定日 2026年4月19日
不動産会社コード 2104279 物件管理コード 1135932991140000784915
  • ※間取りの「S」はサービスルーム(納戸)です。
  • ※QRコードは(株)デンソーウェーブの登録商標です。

資料請求などはこちら

問い合わせ(無料)

TEL: 03-5349-8686

お問い合わせ番号: LO076114

お問い合わせ先:株式会社リブ・ホーム 荻窪店

所在地 : 東京都杉並区荻窪5丁目14-4 荻窪武蔵野マンション1F
TEL : 03-5349-8686
免許番号 : 東京都知事(4)第91873号
加盟団体 : (公社)全日本不動産協会、(公社)首都圏不動産公正取引協議会

この部屋を見学予約

ホームへ戻る