中野区新井[マンション]

中野区新井[マンション]

マンション[中野区新井]

高円寺・東中野・荻窪|中央線のお部屋探し検索サイト

  • 代表:03-5307-6655
  • 10:00~19:00 / 定休日:毎週水曜日(1月~3月は無休)

物件詳細

中野区新井[マンション]

中野区新井[マンション] の物件詳細ページです。

物件種別: マンション

お問い合わせ番号:LK079517

間取り(面積)

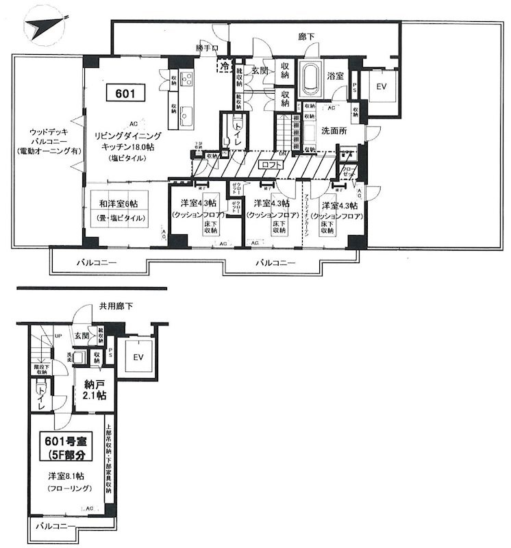
5SLDK

( 114.82㎡ )

賃料(管理費等)

48.0万円

( 20000円 )

交通: 中央線 中野(東京)駅 徒歩7分

敷金/礼金: 1ヶ月 / 1ヶ月

保証金/敷引/償却金: - / - / -

所在地: 中野区新井

築年月: 2009年3月

ポイント

☆最上階ワンフロア☆プレミアム住戸♪

問い合わせ(無料)

TEL: 03-5307-6655

お問い合わせ番号: LK079517

QRコード

  • リビング
  • ベッドルーム
  • キッチン
  • バス
  • 洗面所

資料請求などはこちら

問い合わせ(無料)

TEL: 03-5307-6655

お問い合わせ番号: LK079517

中嶋 さち

人気の街中野エリア!お洒落なカウンターキッチン♪

セールスポイント

特徴 始発駅,閑静な住宅街,南面バルコニー,2面バルコニー,ワイドバルコニー,L字型バルコニー,四方角部屋,最上階,2F以上,1フロア1住戸,オートロック,モニタ付オートロック,メゾネット,玄関ポーチ,玄関ホール,振り分け,寝室8畳以上,全室南向き,角住戸,東南角住戸,南西角住戸,南面リビング,陽当たり良好,カード決済可(入居時費用)
設備 エレベーター,敷地内ゴミ置き場,宅配BOX,システムキッチン,カウンターキッチン,ガスコンロ設置済,2口コンロ,3口以上コンロ,IHクッキングヒーター,グリル,バス・トイレ別,オートバス,追い焚き風呂,浴室乾燥,脱衣所,シャワー,温水洗浄便座,洗面台,洗面所独立,エアコン,CATV,ネット専用回線,ネット使用料不要,インターホン,TVインターホン,給湯,フローリング,全居室フローリング,室内洗濯機置場,クローゼット,シューズボックス,収納有,ガス(都市ガス),下水(公共下水),水道(専用メーター),電気
光ファイバー エレベーター 1基
天井高 空調 1基
部屋外設備 ルーフバルコニー,ルーフバルコニー
駐車場 駐車場:有(敷地内) 29700円/月~ 平置 駐車場まで80m 駐輪場:有
周辺施設 スーパー:ザ・ダイソー 中野早稲田通店 205m
スーパー:ザ・ダイソー 中野ブロードウェイ店 223m
スーパー:ヨークフーズ 中野店 240m
スーパー:西友 中野店 271m
スーパー:まいばすけっと 中野新井1丁目店 244m
スーパー:イトーヨーカドー 食品館中野店 292m

物件概要

物件所在地 東京都中野区新井2丁目 周辺地図
交通機関 中央線 中野(東京)駅 徒歩7分
西武新宿線 新井薬師前駅 徒歩10分
東京メトロ丸ノ内線 新中野駅 徒歩20分
間取り詳細 洋室(8.1畳) LDK(18畳) 和室(6畳) 洋室(4.3畳) 洋室(4.3畳) 洋室(4.3畳)
専有面積 114.82㎡
所在階/地上階数 5-6 / 6 部屋向き
建物構造 鉄筋コンクリート 築年月 2009年3月
賃料 48.0万円 管理費等 20000円
敷金 1ヶ月 礼金 1ヶ月
積増し敷金 - 積増し理由
その他一時金 鍵交換代:50,600円 管理サポート費:39,000円 その他費用
損害保険 有 
契約形態 定期借家契約 期間 契約期間:3年
保証会社 必須 初回:総賃料の60%   1年毎に12,000円 保証人代行 必須
法人契約
現況 入居時期 即時 
入居条件 性別(不問),子供(可),単身(可),二人(可),法人(可)
備考 オートロック TVモニターホン ウォシュレット エアコン
IT重説

その他

取引態様 仲介元付(一般) 自社管理番号 LK079517
情報更新日 2026年3月4日 次回更新予定日 2026年4月3日
不動産会社コード 66002 物件管理コード 1135932991140000778325
  • ※間取りの「S」はサービスルーム(納戸)です。
  • ※QRコードは(株)デンソーウェーブの登録商標です。

資料請求などはこちら

問い合わせ(無料)

TEL: 03-5307-6655

お問い合わせ番号: LK079517

お問い合わせ先:株式会社リブ・ホーム 高円寺本店

所在地 : 東京都杉並区高円寺南4丁目27-10 TIGERDEN6F
TEL : 03-5307-6655
免許番号 : 東京都知事(4)第91873号
加盟団体 : (公社)全日本不動産協会、(公社)首都圏不動産公正取引協議会

この部屋を見学予約

ホームへ戻る